WETTBEWERB AUFSTOCKUNG UND ZUBAU MUSEUMSTRASSE 9 UND 11
Auslober: RB Immobilienverwaltungs GmbH & Co Zinshausbesitz 02 OG
Standort: Innsbruck / Tirol
Aufgabe: Bauen im Bestand, Büro, Verwaltung
Projektdauer: Oktober 2021 - Jänner 2022
NF: ca. 3.500 m²
PLANUNGSTEAM
Architektur: KATO architects / DI Karin Demarki / Thomas Leist
Modellbau: steck modellarchitektur
Städtebau
Das Planungsgebiet liegt nordöstlich des Stadtzentrums nahe der mittelalterlichen Altstadt und ist Teil der gründerzeitlichen vier bis fünfgeschossigen Blockrandbebauung der Museumstrasse. Die Prägung der historischen Bauwerke aus dem 19. und 20. Jahrhundert, die den Straßenzug säumen, ist bestimmt vom Historismus der Epoche, der sich in Elementen wie horizontalen Friesen und Gesimsen oder vertikalen Pilastern zeigt. Die Erdgeschosszone hat sich durch die Modifikationen der verschiedenen Geschäfte in den vergangenen Jahrzehnten stark gewandelt und zeigt zum Großteil Schaufensterflächen.
Der gewichtige Nachbar, das Landesmuseum Ferdinandeum, weist auch dem in der Wettbewerbsaufgabe zu behandelnden Gebäude hohe Prominenz zu, bildet es doch gemeinsam mit der Museumstrasse 19 den Rahmen des Auftaktes zum namensgebenden Bauwerk der Museumstrasse. Die Aufstockung wird als das Gebäude umlaufenden Bauteil die rahmengebende Geste unterstreichen.
Durch die Maßnahmen aus verschiedenen Epochen ergibt sich beim gegenständlichen Areal ein heterogenes Bild dessen Homogenisierung durch folgende Maßnahmen angestrebt wird:
-
Einheitliche Aufstockung, die dem Gebäude wie eine Klammer aufgesetzt ist.
-
Abheben der Aufstockung vom Bestand durch markante trennende Bestandsgesimse im historischen Teil (Süden und Osten)
-
Ein leicht zurückweichendes verglastes Geschoss als Fuge auf dem Bestand aus den 70er Jahren (Osten)
-
Zubau als abschließende Figur der Blockrandbebauung im Norden und Fassung der begrünten Terrasse im Innenhof.






Fassadengestaltung - Architektur / gestalterische Aspekte
Zur Museumstrasse hin weisen die Südfassaden der Adressen 9 und 11 die für die Blockrandbebauung typische durch horizontale Gesimse unterteilte Gestaltung auf. Das Haus Nr. 9 wird vom ersten Obergeschoss vertikal auch durch zwei randausbildende Erker geprägt. Im ersten Obergeschoss besitzen die Fenster Dreiecksgiebel, beim Haus Nr. 11 sind Sturzbänder mit floralem Muster angebracht. Das abschließende Traufgesims weist im Haus Nr. 9 mehrere Abstufungen und Verkröpfungen auf und besitzt einen Zahnschnitt. Beim Haus Nr. 11 springt das markante Traufgesims nach kleinen Übergangsleisten ca. 40 cm vor die Fassadenfläche.
Die Fassaden der Aufstockung heben sich durch die stark artikulierten Gesimse des historischen Bestandes sowie durch einen horizontal verlaufenden Riegel von den darunterliegenden Geschossen ab.
Für die sehr heterogene östliche Fassade wird als erster Schritt zur „Beruhigung“ vorgeschlagen, die Fensterbänder durch eine vorgehängte Panel-Fassade zu ersetzen, in der rechteckige Öffnungen analog zum historischen Bestand zum Einsatz kommen. Darauf wird ein drittes Obergeschoss errichtet, dessen Glasfassade wiederum eine Fuge zum darüberliegenden Aufstockungsgeschoss ausbildet. Die Fassaden der Aufstockung bestehen aus mit Verglasungen gefüllten Rahmen, die in hellem Naturstein verkleidet sind. Der neue Zubau im Norden setzt sich durch das verglaste Stiegenhaus deutlich vom Bestand ab, nimmt in seinen Flanken die Fassadengestaltung der geschlossenen Fläche mit Einzelfenstern auf und lässt im Westen durch die über die gesamte Höhe verlaufende Verglasung tiefe Ein- und Ausblicke zu.






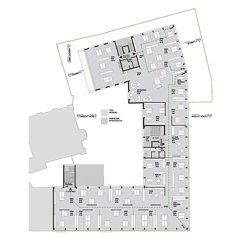
Funktion
Im Dachgeschoss der Aufstockung liegen im Nordosten die repräsentativen Räume der gemeinsamen Infrastruktur sowie im Zubau die Bereiche für die Mitarbeiter. Vom zentralen Empfangsbereich bzw. dem sozialen Bereich für Mitarbeiter erreicht man die Westterrasse mit Ausblick über die Altstadt und die umgebende Bergwelt. Im Südflügel findet die Standortagentur Tirol Platz. Das vierte Obergeschoss verschreibt sich ganz der Tirol Werbung. Im dritten Obergeschoss, das sich hinter der geschosshohen Verglasung erstreckt befinden sich die Büros von Agrarmarketing Tirol und Lebensraum Tirol Holding, die jeweils durch ein eigenes Treppenhaus erschlossen sind. Im Zubau finden auf diesem Geschoss auch noch Desksharing-Offices Platz. Der Zubau schwebt über dem Parkplatz und bietet in seinen ersten drei Geschossen Platz Untervermietung oder gemeinsam genutzte Kreativbereiche. Vom ersten Obergeschoss des Zubaus aus erreicht man die geschützte Dachterrasse im Innenhof.
Die Arbeitsbereiche zeichnen sich durch verschiedene Größen (von drei bis 9 Arbeitsplätzen) und damit hohe Flexibilität und Zukunftstauglichkeit aus. Offene und geschlossene Zonen sowie werden durch die Möblierung oder mobile Trennwände geschaffen und ermöglichen individuelle Raumkonstellationen für neue Gemeinschaften und kreative Vernetzungen für neue soziale Arbeitswelten.
Konstruktion
Die Aufstockung wird in Holzleichtbauweise mit Stahlbetondecken ausgeführt. Die achsiale Rasterung nimmt die Proportion des historischen Bestandes auf. Die Rahmen folgen der Silhouette der Dachneigungen, zur Straße hin als Satteldach mit 38° Neigung und zum Hof hin als Pultdach. Die Rahmenfelder sind mit Dreifachverglasungen ausgefacht. Der Zubau wird massiv in Stahlbetonweise erstellt.


